陕西省建筑设备与门窗协会

www.sxjzsbymc.org.cn
内容详情

线传热系数ψ值:门窗及安装更节能的关键!

 二维码 48
发表时间:2025-09-09 15:25来源:门窗万语网址:https://mp.weixin.qq.com/s/7oIFHv01B60hZpOvDgkIwg
在建筑节能领域,线传热系数(ψ值)是衡量外围护结构热工性能的关键参数,它精准地描述了在单位温差下,通过单位长度节点缝隙的附加热损失

对于门窗系统而言,理解和精确计算两个相关的ψ值至关重要:一是玻璃边缘与窗框连接处的线传热系数(ψg),二是外窗与墙体连接处的线传热系数(ψi);这些计算通常需要依托专业热工软件(如THERM等)或采用软件模拟与手算相结合的方式完成。


本文将系统性地深入探讨ψgψi的定义、计算原理、标准方法及实操案例,为设计师、工程师及行业同仁提供参考。


一、为何要关注两个ψ值?


在建筑物理中,热传递有三种方式:导热、对流和辐射。在门窗幕墙等围护结构中,热传递路径复杂,既包括玻璃中心区域、窗框面板等面传热,也包括各种线性和点状热桥。线传热系数ψ就是用来量化线性热桥效应强弱的指标。


ψg(玻璃边缘线传热系数):反映的是门窗幕墙本身,玻璃与框结合处的热工性能。中空玻璃的边部密封系统(内含间隔框、干燥剂和密封胶)传热能力远高于玻璃中心,会形成热流密集通道,ψg就是衡量这个“通道”附加传热大小的尺度,它对整窗传热系数(Uw值)大小有重要影响。


ψi(安装接线传热系数):反映的是窗户成品在装入墙体洞口后,窗框与墙体结构连接处的热工性能。安装节点涉及不同材料(混凝土、砌块、保温层、窗框、密封材料)的交接,处理不当会形成显著的热桥,不仅增加热损失,还可能导致室内结露、发霉。ψi是评估安装构造优劣、进行能耗模拟和结露风险分析的重要参数。


二者一内一外,共同构成了评估外窗系统整体热工性能不可或缺的完整链条。


二、ψg的计算方法与实例


ψg计算理论来源于行业标准JGJ/T 151-2008《建筑门窗玻璃幕墙热工计算规程》,其核心思想是通过“替代法”进行间接计算,将玻璃中心区域均匀传热与边缘线性热桥附加传热分离开来。


计算三步曲:


1、用绝热材料替代玻璃,计算窗框传热系数(Uf)


此步骤的目的是消除玻璃的影响,单独考察窗框本身的热工性能。将玻璃替换为导热系数极低(通常0.03 W/(m·K))的绝热材料板,然后通过THERM软件模拟计算,得到窗框的传热系数Uf


2、计算玻璃系统时,框截面整体线传热系数LΨ2D


目的是得到在安装了实际玻璃系统的状态下,通过整个窗框截面(包括玻璃、窗框、密封材料等所有部件)单位长度的总传热量,折算成单位温差后的值。


3、计算目标值——玻璃边缘线传热系数(ψg)


最后,通过公式ψg = LΨ2D-Uf×bf -Ug×bg计算出最终结果。该公式的本质是从总传热量中扣除窗框本身的传热贡献,从而得到纯粹由玻璃边缘线性热桥引起的附加传热系数。


某隔热铝合金型材节点,线传热系数计算实例如下:


首先,用绝热材料替代玻璃,计算窗框传热系数Uf,可用Therm直接读取,或按下图公式计算。



然后,计算玻璃系统时,框截面整体线传热系数LΨ2D和玻璃边缘线传热系数ψg,见下图。


可知,该节点玻璃边缘与窗框连接处线传热系数为0.028 W/(m·K),德国被动房研究所(PHI)的认证报告计算结果为0.032 W/(m·K),见下图。



虽因面板厚度差异等导致数值略有不同,但二者结果非常接近,能验证该计算方法的正确性,二者计算原理是一致的。


三:ψi的计算方法与实例


ψi计算理论依据是GB 50176-2016《民用建筑热工设计规范》,核心是计算整个节点二维总传热量,减去墙体部位传热量和窗户自身传热量,其差值即为安装热桥的附加传热量。


计算四步曲:


1、计算外窗截面本身的线传热系数(Lf2D):即上文计算ψg所计算的窗框截面线传热系数Lf2D,代表窗户自身的传热量。


2、计算墙体主体部位的传热系数K:按照规范计算墙体各层材料(抹灰、砌块、保温层等)在实际厚度下的传热系数K值。


3、计算通过整个二维截面的热流(Q2D):使用THERM软件建立包含外窗节点、安装构造和部分墙体的总模型,模拟得到单位长度总传热量Q2D(W)


4、计算目标值——安装线传热系数(ψi):将上述结果代入公式ψi =Q2D/(l·ΔT) - KC-Lf2D,求得结果


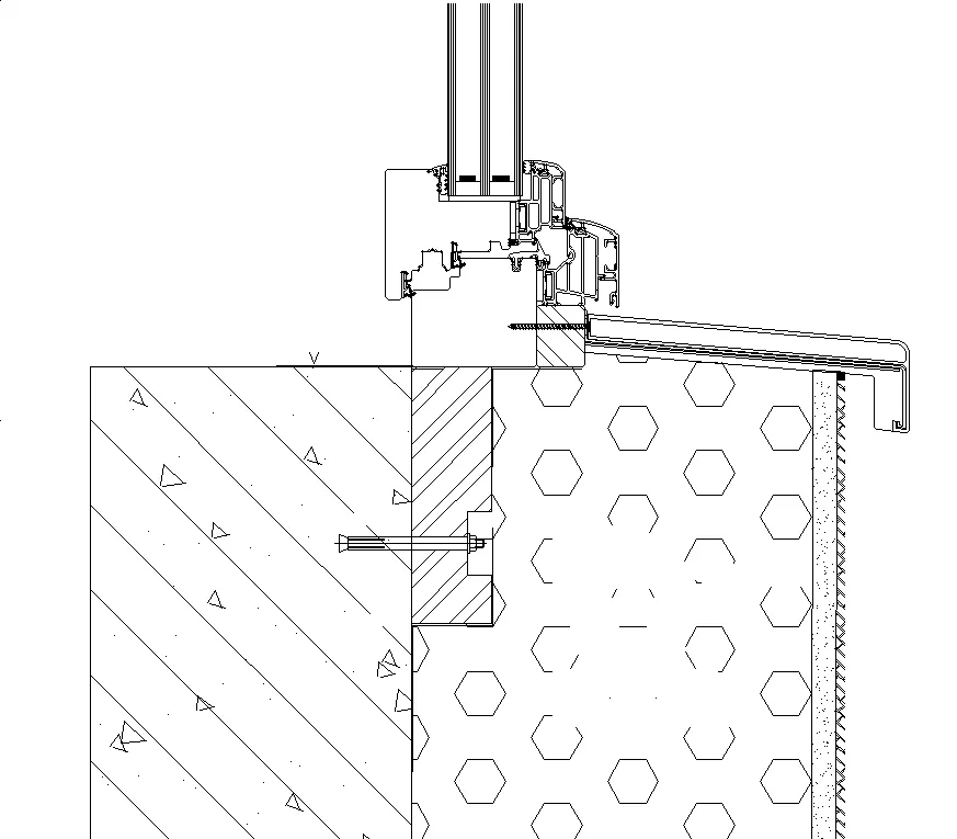
以某外挂式门窗安装节点进行实例详解,节点见下图。




首先,采用Therm软件模拟计算外窗截面本身的线传热系数Lf2D,见下图。



可知,该外窗截面本身的线传热系数Lf2D为0.238 W/(m·K)。


然后,计算墙体主体部位的传热系数K值,GB 50176-2016第3.4节计算即可,墙体K值计算结果为为0.134 W/(㎡·K)


采用Therm软件模拟得到整个截面的热Q再计算安装构造线传热系数Ψi见下图。



可以看出,该门窗安装构造的线传热系数为0.027 W/(m·K)。


某类似外窗安装节点,德国被动房研究所(PHI)认证报告计算结果为0.020 W/(m·K),见下图。





由于外窗节点和墙体构造不完全相同,结果有一定差异,但计算原理是一致的。


小结一下:


玻璃边缘线传热系数ψg与门窗安装线传热系数ψi虽然计算对象不同,但方法论是一致的,都是通过测算整体截面的热流量,减去主要部件的传热量,得到连接处的线传热系数。


ψg关注产品性能,是门窗企业优化窗框节点、玻璃边部密封构造的重要依据;ψi则关注门窗安装性能,是工程师优化门窗安装节点、选择安装方式、确保施工质量的关键指标。


在被动式超低能耗建筑、近零能耗建筑中,这两个ψ值的精确计算显得尤为重要。一个优异的窗户产品(Uw值低、ψg值小)如果未采用合理的安装构造(ψi值过大),其性能将在洞口边缘大打折扣,甚至导致结露风险。因此,必须对“窗本身”和“窗与墙的连接”给予同等重视。


线传热系数ψgψi是连接微观热工分析与宏观建筑节能的核心桥梁。从产品研发到工程设计,再到施工验收,理解和掌握它们的计算与应用,意味着能够真正从细节上掌控建筑的能量交换过程,是实现建筑高性能、低能耗目标的必由之路。


随着我国建筑节能标准的不断提高,对围护结构热工性能的考量必将从“面”深入至“线”和“点”。希望本文对两个ψ值的系统阐述,能够为广大从业者提供切实的帮助,共同推动行业向更精细化、更高质量的方向发展。



文章分类: 建筑门窗
分享到:
办公地址:西安市雁塔区太白南路189号
     (原西安铁路职工大学)主楼四楼北侧
邮政编码:710065 联系电话:029-89344310 89344311 89349576 89639596
工作邮箱:sxjzsbymc@163.com
自媒体矩阵
手机微站